





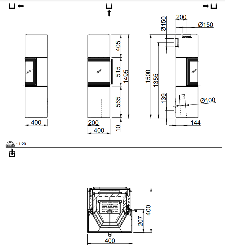
De Trico S van Spartherm beschikt over een grote ruit waardoor u een prachtig zicht heeft op het vlammenspel. Daarbij kan het vuur door de driezijdige ruit bewonderd worden vanuit alle hoeken van de kamer. Door de vierkante hoeken en strakke lijnen heeft het model een moderne uitstraling. De Trico S is een perfect model voor wat kleinere woonruimtes, in tegenstelling tot zijn grote broer; de Trico L. Dit hoge model past bijvoorbeeld perfect in ruimtes met een hoog plafond.
Product downloads